JT Bellezzaシリーズ
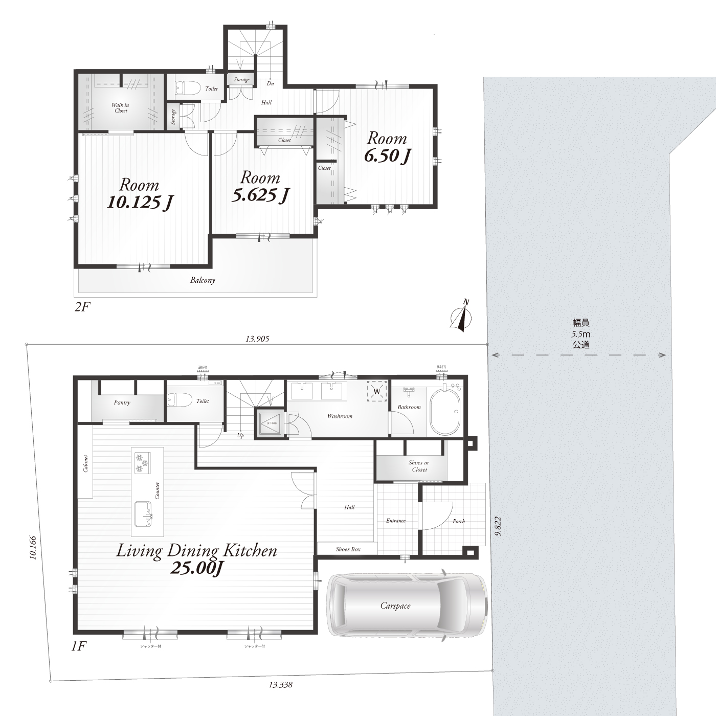
上質な開放感に包まれる25帖のLDK
| 価格 | 交通 | 土地面積 | 建物面積 | 間取 |
|---|---|---|---|---|
| 13,800 万円(税込) | 東京メトロ有楽町線「平和台」駅 徒歩 |
136.01m²(実測) | 134.11m² | 3LDK |
■玄関ドアを開けると開放的な玄関ホール
■玄関横には大容量シューズクローク
■25帖あるLDKに洗礼されたアイランドキッチン
■キッチンに隣接するゆとりあるパントリー
■ゆとりの時間を生むダブル洗面台
物件概要
| 価格 | 13,800 万円(税込) | ||
|---|---|---|---|
| 物件名 | JT Bellezza(ベレッツァ) 平和台B棟 | ||
| 所在 | 練馬区北町7丁目 | ||
| 交通1 | 東京メトロ有楽町線「平和台」駅 徒歩6分 | ||
| 交通2 | 東京メトロ有楽町線「地下鉄赤塚」駅 徒歩15分 | ||
| 交通3 | 東武東上線「下赤塚」駅 徒歩17分 | ||
| 土地面積 | 136.01m²(実測) |
建物面積 | 134.11m² |
| 間取り | 3LDK | 建物構造 | 木造2階建て(テクノストラクチャー) |
| 築年月 | 2025年10月(完成予定) | ||
| 建築確認番号 | 第25UDI1S建00856号 | 土地権利 | 所有権 |
| 駐車場 | 1台 | 取引態様 | 売主 |
| その他費用 | |||
| 担当者コメント |
■玄関ドアを開けると開放的な玄関ホール ■玄関横には大容量シューズクローク ■25帖あるLDKに洗礼されたアイランドキッチン ■キッチンに隣接するゆとりあるパントリー ■ゆとりの時間を生むダブル洗面台 |
||


